株式会社ミュー不動産
spacer
シングル ファミリー 貸家 売買 店舗・事務所 中古物件 会社概要
spacer
物件の概要
土地付中古アパート(土地4筆・建物1棟)
土地 1065.17u (322.21坪)
建物  362.88u (109.77坪)
住所 稚内市緑1丁目14番1号 500万円
spacer
外観と土地図
土 地 図  
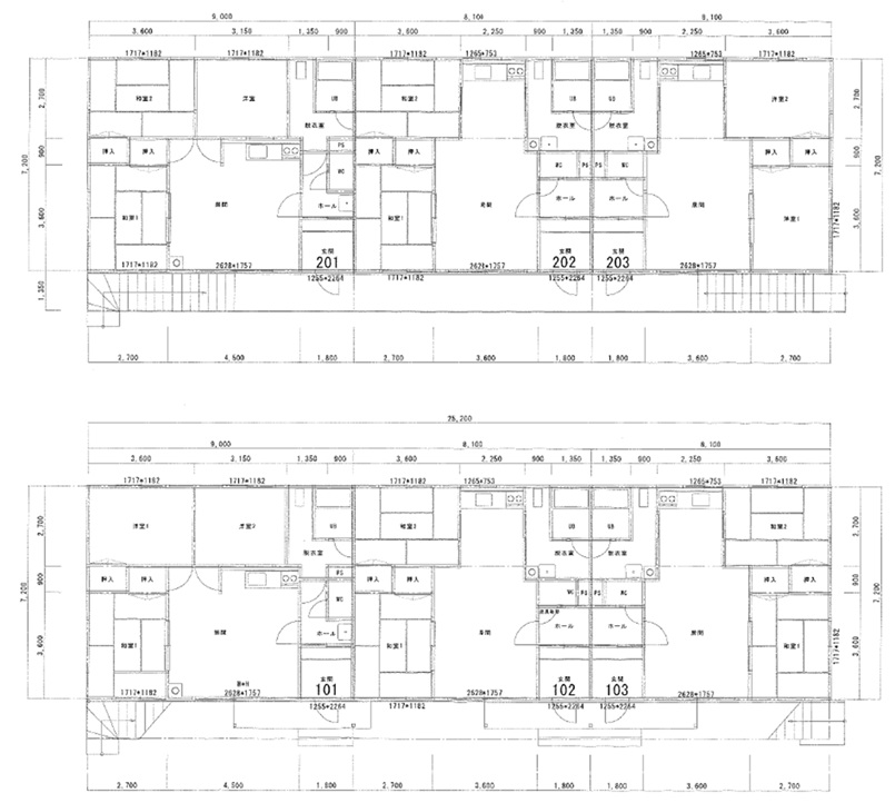
間取り図
 地   図
室内写真
101号 103号
201号 202号 203号
外観写真
内覧ご希望の方はご連絡ください。
spacer
物件の詳細
取引形態 仲介 仲介料 330,000円 権利等 所有権
区分 土地付中古共同住宅 所在地 稚内市緑1丁目36番地2・6・7・31
 土地面積
(公簿)
36番2 489.27u ・ 36番6 242.97u ・ 36番7 104.13u ・ 36番31 228.80u  
合計4筆 1066.17u(322.21坪)
       地目  宅地
 家屋番号 36番2 建物
種類 
共同住宅 建物構造  木造
亜鉛メッキ鋼板葺
2階建 
延床面積
(公簿)
362.88u(109.77坪) 1階面積 181.44u 2階面積 181.44u
 新築
年月日
 昭和59年7月20日 用途地域 第1種中高層住居専用地域 建坪率
容積率
60%
200%
備考 ・ 土地・建物現状渡し   
・ 現在空室です

spacer
spacer